Wohnungstypen

Unser Haus verfügt über 112 Wohnungen mit unterschiedlichen Größen und Grundrissen. Hier finden Sie bestimmt die passende Wohnung für Ihre Bedürfnisse!

Warum eine betreute Wohnung wählen?

Im Betreuten Wohnen genießt man selbstbestimmtes und eigenständiges Wohnen in ruhiger Lage, ohne auf die Annehmlichkeiten unterstützender Pflege- und Betreuungsleistungen verzichten zu müssen. Diese können individuell dazu gebucht werden. Im Notfall kann mittels Notrufknopf in Ihrer Wohnung umgehend Hilfe angefordert werden.

Auch die Gemeinschaft des Hauses ist ein wichtiger Aspekt des betreuten Wohnens. Gerne nehmen die Bewohner:innen am abwechslungsreichen Aktivitätenprogramm teil, dass sie auch mitgestalten können. Unser vielfältiges Aktivitätenprogramm sorgt für Abwechslung. Gemeinsam werden Feste gefeiert und Traditionen gepflegt.

Kosten

Die Mietpreise unserer Wohnungen starten bei 1.050,00 Euro monatlich. Im Mietpreis inkludiert sind die Betriebskosten, Strom, Heizkosten sowie unser Grundpaket. Dies umfasst die wöchentliche Reinigung Ihrer Wohnung, die Rufhilfe, das tägliche Aktivitätenprogramm, die Nutzung unseres Waschsalons mit Bügelstationen, die tägliche Anwesenheit von Pflegepersonal und die 24-Stunden-Anwesenheit von Betreuungspersonal als Notdienst.

Probewohnen möglich!

Sie interessieren sich für das betreute Wohnen, wissen aber nicht so recht, ob diese Art des Wohnens das Richtige für Sie ist? Wohnen Sie doch ein bisschen auf Probe!

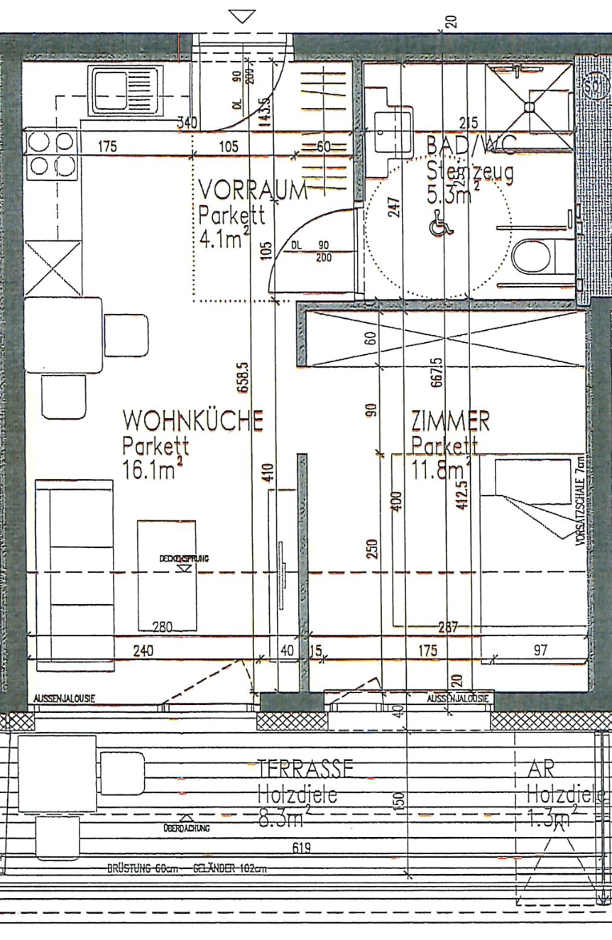
Wohnung 36,7 qm

Die Ansicht vergrößert sich durch Klick auf die Grafik

  • gemütliche Wohnküche mit Platz für Essbereich und Wohnzimmer
  • Einbauküche mit Kühlschrank mit Gefrierfach, Geschirrspüler, E-Herd mit Dunstabzug sowie Backrohr
  • Schlafzimmer mit Blick ins Grüne
  • barrierefreies Bad mit Haltegriffen und Fußbodenheizung
  • eigener Balkon oder Terrasse
  • Parkettboden in den Wohnbereichen
  • Digital-SAT-TV Anschluss
  • Telefonanschluss
  • Internetanschluss (Festnetzinternet oder mobiles Internet möglich)
  • Kellerabteil

Wohnung 38 qm

Die Ansicht vergrößert sich durch Klick auf die Grafik

  • gemütliche Wohnküche mit Platz für Essbereich und Wohnzimmer
  • Einbauküche mit Kühlschrank mit Gefrierfach, Geschirrspüler, E-Herd mit Dunstabzug sowie Backrohr
  • Schlafzimmer mit Blick ins Grüne
  • barrierefreies Bad mit Haltegriffen und Fußbodenheizung
  • eigener Balkon oder Terrasse
  • Parkettboden in den Wohnbereichen
  • Digital-SAT-TV Anschluss
  • Telefonanschluss
  • Internetanschluss (Festnetzinternet oder mobiles Internet möglich)
  • Kellerabteil

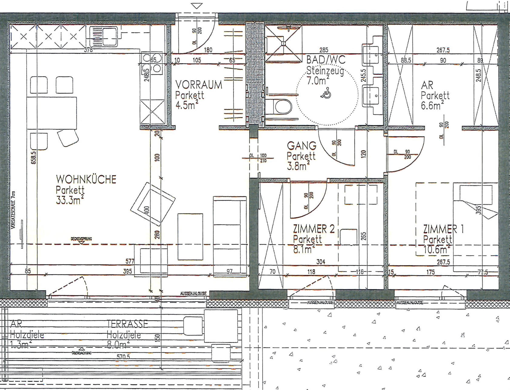
Wohnung 55 qm

Die Ansicht vergrößert sich durch Klick auf die Grafik

  • gemütliche Wohnküche mit Platz für Essbereich und Wohnzimmer
  • Einbauküche mit Kühlschrank mit Gefrierfach, Geschirrspüler, E-Herd mit Dunstabzug sowie Backrohr
  • Schlafzimmer mit begehbarem Schrankraum
  • barrierefreies Bad mit Haltegriffen und Fußbodenheizung
  • großzügiger Vorraum
  • eigener Balkon oder Terrasse
  • Parkettboden in den Wohnbereichen
  • Digital-SAT-TV Anschluss
  • Telefonanschluss
  • Internetanschluss (Festnetzinternet oder mobiles Internet möglich)
  • Kellerabteil

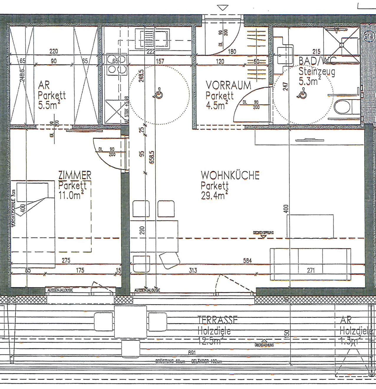
Wohnung 73 qm

Die Ansicht vergrößert sich durch Klick auf die Grafik

  • gemütliche Wohnküche mit Platz für Essbereich und Wohnzimmer
  • Einbauküche mit Kühlschrank mit Gefrierfach, Geschirrspüler, E-Herd mit Dunstabzug sowie Backrohr
  • Schlafzimmer mit begehbarem Schrankraum
  • weiteres Zimmer mit rund 8 m²
  • barrierefreies Bad mit Haltegriffen und Fußbodenheizung
  • großzügiger Vorraum
  • eigener Balkon oder Terrasse
  • Parkettboden in den Wohnbereichen
  • Digital-SAT-TV Anschluss
  • Telefonanschluss
  • Internetanschluss (Festnetzinternet oder mobiles Internet möglich)
  • Kellerabteil

Finden Sie hier Antworten zu den häufig gestellten Fragen über die BePartments Graz-Lend!